
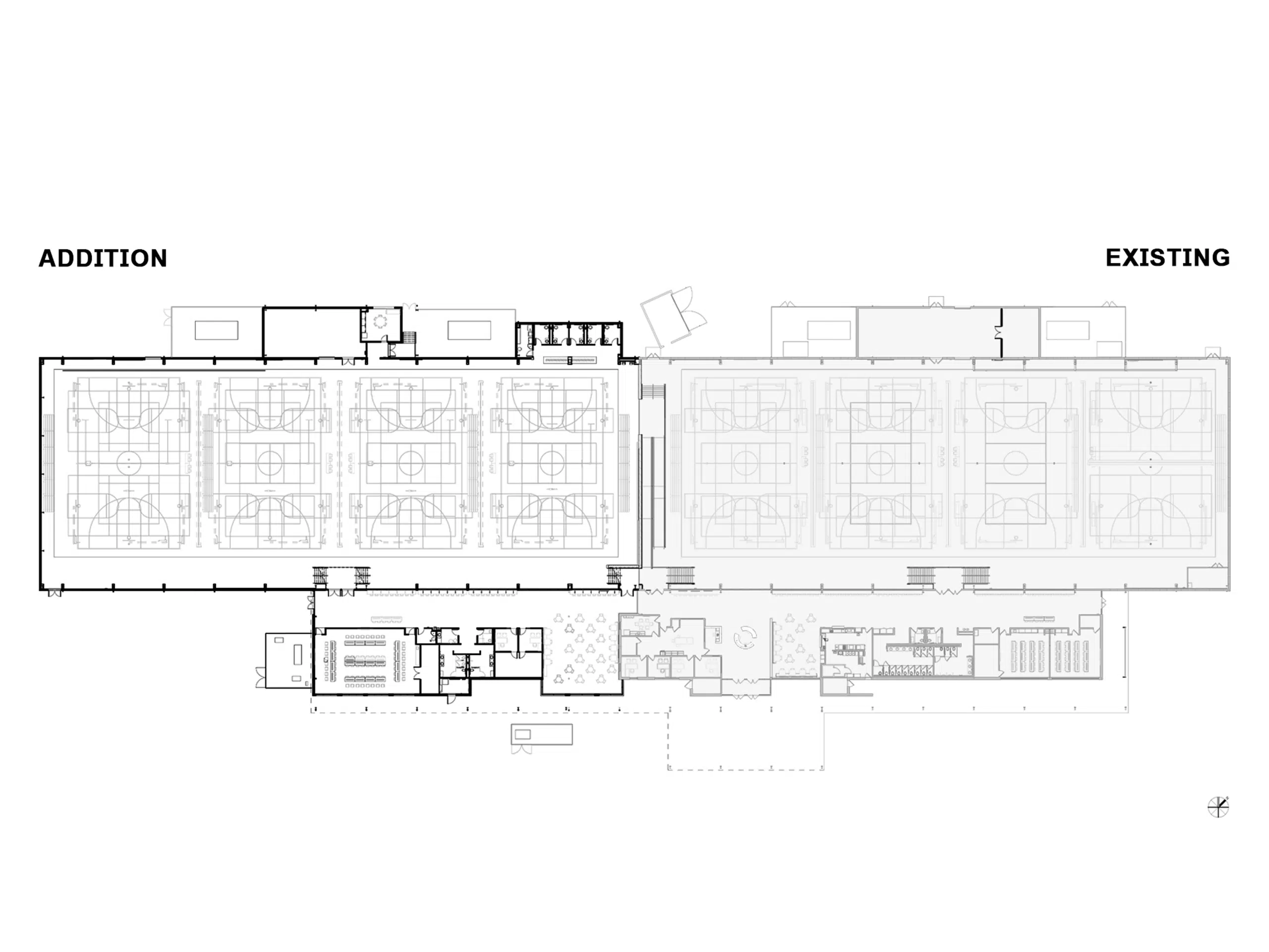
SFS Architecture collaborated with the City of Columbia, Missouri to design a new 46,000 square foot fieldhouse at the northern edge of A. Perry Philips Park. The new fieldhouse, phase one of a master plan also developed by SFS, features four athletic courts designed to accommodate basketball, volleyball, pickleball and other indoor sports throughout the year, two multipurpose rooms, concessions, restrooms, administration office suites, and associated storage and mechanical spaces.
Phases two and three are master planned to include expansions to accommodate a total of eight basketball courts, four indoor tennis courts, and an indoor soccer field. The expansions are anticipated to connect to phase one via a designated hallway, allowing future building(s) to be connected to the existing facility at one control point. Additional amenities will include outdoor athletic fields, shelters and associated parking.
SFS began design services for the fieldhouse’s phase two expansion in 2022. The project is currently under construction.

Our Team
-
Kerry Newman AIA, LEED AP
Senior Principal
-
Brian Garvey AIA, DBIA, LEED AP
Principal
-
Zach Bodine AIA
Senior Project Architect, Associate
-
Laura Burkhalter IIDA, LEED AP, WELL AP
Senior Interior Designer, Senior Associate
Our Services
- Concept Design
- Community Engagement
- Interior Design
- Construction Administration
- Programming
- Architectural Design
- Preliminary Cost Estimating
- Master Plan - Building
- Bidding Administration
- Master Planning